Used 2017 Coachmen RV Freedom Express 310BHDS
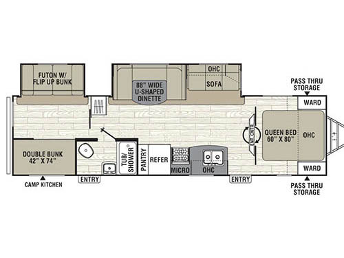
This 310BHDS Freedom Express travel trailer by Coachmen RV features two deep slide outs that make this unit feel even more spacious the minute you step inside. With a rear bunkhouse you can easily sleeps 9!
Starting out in front there is a queen bed to the right of the front most entry door with wardrobes on either side of the bed, plus an overhead storage cabinet for your things.
The main living and combined dining area feature a large slide out with a 88" wide u-shaped dinette and sofa. There is an entertainment center just off the foot of the bed with a 360 degree TV box for multiple position viewing.
The kitchen is to the left of the front most entrance and features all of the amenities needed to provide meals and snacks for your whole crew. There is a pantry for your dry and canned goods, a refrigerator and microwave oven, plus a three burner range for cooking. You will also find a double sink which makes cleaning up a cinch.
Step further back into this Freedom Express trailer and find a convenient full bath with toilet, sink, and tub/shower, or check it out by entering the rear most side door which provides immediate accessed from the outside. No more running through the entire trailer for the bathroom when outdoors.
The rear bunkhouse is perfect for the kids and extra guests to feel like they have a little space to call their own. There is a 42" x 74" bunk on the left with wardrobe and ladder beneath, and a slide out futon opposite with flip-up bunk above.
There is also no shortage of storage space with a front pass-through compartment. If that isn't enough, then check out the camp kitchen beneath teh double bunk along the rear curb side. Here you can enjoy creating meals or snacks while enjoying the great outdoors at the same time, plus so much more!
After having a horrific experience 2 weeks ago at Independence RV in Florida, we ran across this Dealership in Myrtle Beach, SC. After a few conversations with Scott Burleson in sales, in exactly one week, we purchased and picked up our brand new Dutch Star! What a completely opposite experience from 2 weeks prior!!!! Sales and Service was perfectly executed and the deal was flawless. The staff at - Vince from Jonesborough, TN
Stock# P6522
| Sleeps | 9 |
| Slides | 2 |
| Length | 35 ft 7 in |
| Ext Width | 8 ft |
| Ext Height | 11 ft |
| Hitch Weight | 865 lbs |
| GVWR | 9900 lbs |
| Dry Weight | 7247 lbs |
| Cargo Capacity | 2653 lbs |
| Fresh Water Capacity | 49 gals |
| Grey Water Capacity | 33 gals |
| Black Water Capacity | 33 gals |
| Tire Size | ST205/75R14C |
| VIN | 5ZT2FEWB1HA026740 |
Loading
Coachmen RV is built upon a simple principle… "Dedicated to the enrichment of your life." By providing you with long term value through all that we do, our focus is on providing a product with superior value and backing it through superior service and support. Once you become a Coachmen owner, we are committed to enhancing your Coachmen RV ownership and lifestyle experience… creating friends for life and memories that will last a lifetime.
At Coachmen you will find a rich history of commitment from our Team Members. This commitment extends to our owners and in the pride we have for our brand. The close relationship that we share with our owners and our dealers is a quality that others have been trying to mimic over our 57 year history. Our goals and principles remain well in focus.
Carolina RV is not responsible for any misprints, typos, or errors found in our website pages. Any price listed excludes sales tax, registration tags, and delivery fees. Manufacturer pictures, specifications, and features may be used in place of actual units on our lot. Please contact us @843-213-1554 for availability as our inventory changes rapidly. All calculated payments are an estimate only and do not constitute a commitment that financing or a specific interest rate or term is available.


